Profissional
Certificado Energético: A+
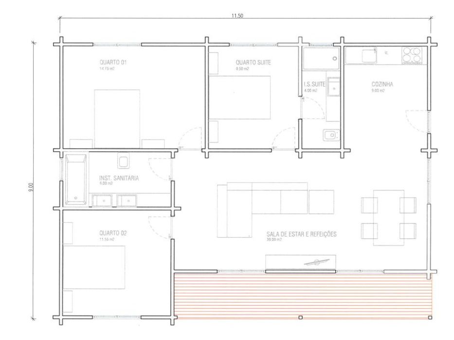
Tipologia: T3
Casas de Banho: 2
Área útil: 103,50 m²
Condição: Novo
Descrição
MODELO T.3 , 103M2
EM FASE DE ADJUDICAÇÃO DA NOSSA PROPOSTA, ENTREGAMOS AOS CLIENTES PROJETO DA CASA, SEM CUSTO ADICIONAL.
Espessura de parede 44 mm.
Também disponível em espessura de parede de 60mm, 92 mm (Preço s/consulta).
No preço incluído o fornecimento kit habitação,custos de transporte zona Portugal Continental.
Caso pretende ver as nossas habitações montadas em Portugal, entre em contacto com o nosso Técnico.
AGUARDAMOS O SEU CONTACTO para apresentar-lhe as nossas propostas e catálogo.
Trabalhos relacionados com montagem e acabamentos - preço/s consulta.
KIT HABITAÇÃO COMPOSTO POR:
Paredes, pavimento, cobertura interior, vigamento, portas (interiores e exteriores) e janelas com vidro duplo (nas paredes com espessuras superiores a 34mm) de abertura e batente, ferragens incluídas.
Todas as peças de madeira maciça em Pinho/Abeto Nórdico.
OS FOTOS ANEXADOS AO ANÚNCIO TÊM APENAS CARÁCTER INFORMATIVO. PARA DAR CONHECIMENTO DOS NOSSOS TRABALHOS.
O PREÇO ANUNCIADO SEMPRE DIZ RESPEITO A(s) PLANTA(s) ANEXADAS AO ANÚNCIO.
Ao dispor,
Equipa Casas&Saunas de madeira
EM FASE DE ADJUDICAÇÃO DA NOSSA PROPOSTA, ENTREGAMOS AOS CLIENTES PROJETO DA CASA, SEM CUSTO ADICIONAL.
Espessura de parede 44 mm.
Também disponível em espessura de parede de 60mm, 92 mm (Preço s/consulta).
No preço incluído o fornecimento kit habitação,custos de transporte zona Portugal Continental.
Caso pretende ver as nossas habitações montadas em Portugal, entre em contacto com o nosso Técnico.
AGUARDAMOS O SEU CONTACTO para apresentar-lhe as nossas propostas e catálogo.
Trabalhos relacionados com montagem e acabamentos - preço/s consulta.
KIT HABITAÇÃO COMPOSTO POR:
Paredes, pavimento, cobertura interior, vigamento, portas (interiores e exteriores) e janelas com vidro duplo (nas paredes com espessuras superiores a 34mm) de abertura e batente, ferragens incluídas.
Todas as peças de madeira maciça em Pinho/Abeto Nórdico.
OS FOTOS ANEXADOS AO ANÚNCIO TÊM APENAS CARÁCTER INFORMATIVO. PARA DAR CONHECIMENTO DOS NOSSOS TRABALHOS.
O PREÇO ANUNCIADO SEMPRE DIZ RESPEITO A(s) PLANTA(s) ANEXADAS AO ANÚNCIO.
Ao dispor,
Equipa Casas&Saunas de madeira
ID: 620958822
Contactar anunciante
xxx xxx xxx