Profissional
Certificado Energético: A+
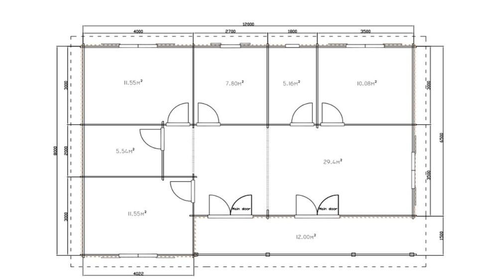
Tipologia: T4
Área útil: 96 m²
Descrição
Modelo T.4 96 m2
EM FASE DE ADJUDICAÇÃO DA NOSSA PROPOSTA, ENTREGAMOS AOS CLIENTES PROJETO DA CASA, SEM CUSTO ADICIONAL.
Casa de madeira que conta com 4 quartos, sala de estar, 2 Casas de Banho e um terraço muito agradável.
Espessura da parede é de 44 mm.
Também disponível em espessura de parede de 70mm, 92 mm (Preço s/consulta).
No preço incluído o fornecimento kit habitação, custos de transporte zona Portugal Continental.
Caso pretende ver as nossas habitações montadas em Portugal, entre em contacto com o nosso Técnico.
AGUARDAMOS O SEU CONTACTO para apresentar-lhe as nossas propostas e catálogo.
Trabalhos relacionados com montagem e acabamentos - preço/s consulta.
KIT HABITAÇÃO COMPOSTO POR:
Paredes, pavimento, cobertura interior, vigamento, portas (interiores e exteriores) e janelas com vidro duplo (nas paredes com espessuras superiores a 34mm) de abertura e batente, ferragens incluídas.
Todas as peças de madeira maciça em Pinho/Abeto Nórdico.
OS FOTOS ANEXADOS AO ANÚNCIO TÊM APENAS CARÁCTER INFORMATIVO. PARA DAR CONHECIMENTO DOS NOSSOS TRABALHOS.
O PREÇO ANUNCIADO SEMPRE DIZ RESPEITO A(s) PLANTA(s) ANEXADAS AO ANÚNCIO.
Ao dispor,
Equipa Casas&Saunas de madeira
EM FASE DE ADJUDICAÇÃO DA NOSSA PROPOSTA, ENTREGAMOS AOS CLIENTES PROJETO DA CASA, SEM CUSTO ADICIONAL.
Casa de madeira que conta com 4 quartos, sala de estar, 2 Casas de Banho e um terraço muito agradável.
Espessura da parede é de 44 mm.
Também disponível em espessura de parede de 70mm, 92 mm (Preço s/consulta).
No preço incluído o fornecimento kit habitação, custos de transporte zona Portugal Continental.
Caso pretende ver as nossas habitações montadas em Portugal, entre em contacto com o nosso Técnico.
AGUARDAMOS O SEU CONTACTO para apresentar-lhe as nossas propostas e catálogo.
Trabalhos relacionados com montagem e acabamentos - preço/s consulta.
KIT HABITAÇÃO COMPOSTO POR:
Paredes, pavimento, cobertura interior, vigamento, portas (interiores e exteriores) e janelas com vidro duplo (nas paredes com espessuras superiores a 34mm) de abertura e batente, ferragens incluídas.
Todas as peças de madeira maciça em Pinho/Abeto Nórdico.
OS FOTOS ANEXADOS AO ANÚNCIO TÊM APENAS CARÁCTER INFORMATIVO. PARA DAR CONHECIMENTO DOS NOSSOS TRABALHOS.
O PREÇO ANUNCIADO SEMPRE DIZ RESPEITO A(s) PLANTA(s) ANEXADAS AO ANÚNCIO.
Ao dispor,
Equipa Casas&Saunas de madeira
ID: 605185899
Contactar anunciante
xxx xxx xxx

