Navegar para o conteúdo principal
Chat

Notificações

A tua conta

Anunciar e Vender
Engenheiro Projetista de Redes de Águas, Esgotos, Gás e AVAC
Engenheiro Projetista de Redes de Águas, Esgotos, Gás e AVAC
Engenheiro Projetista de Redes de Águas, Esgotos, Gás e AVAC
Engenheiro Projetista de Redes de Águas, Esgotos, Gás e AVAC
Engenheiro Projetista de Redes de Águas, Esgotos, Gás e AVAC
Engenheiro Projetista de Redes de Águas, Esgotos, Gás e AVAC
Engenheiro Projetista de Redes de Águas, Esgotos, Gás e AVAC
Engenheiro Projetista de Redes de Águas, Esgotos, Gás e AVAC
DestacarPara o topo

Particular

Descrição

Engenheiro Projectista Sénior (inscrito na Ordem dos Engenheiros) com larga experiência em projectos de especialidade. Tendo realizado projetos de várias dimensões e complexidade, desde de hospitais, hotéis e edifícios habitacionais.

Exemplo de serviços:
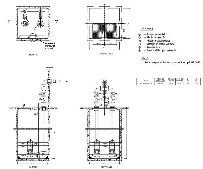
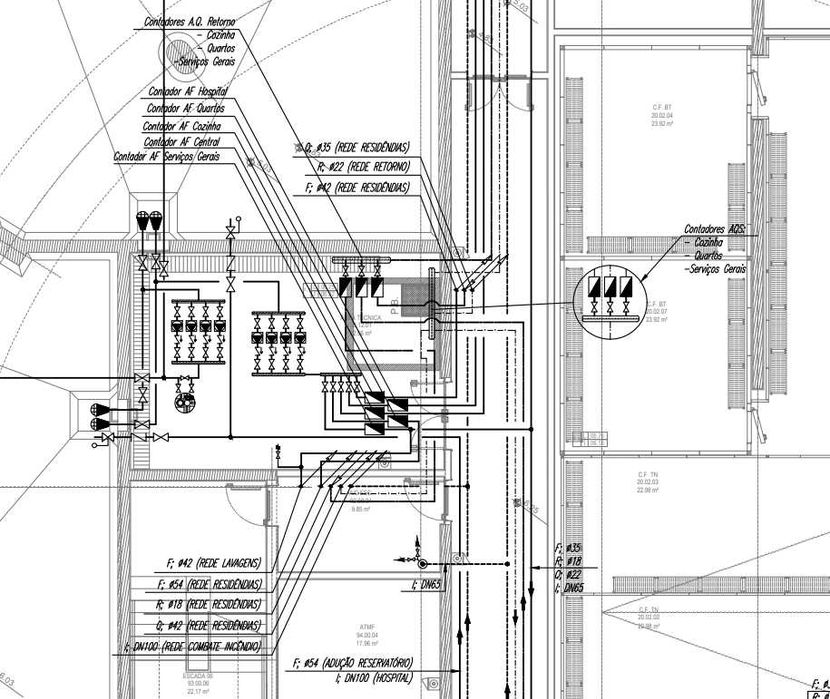
- Projecto de Hidráulica (Redes de Águas e Esgotos);
- Projecto de AVAC;
- Projecto de Redes de Gás;
- modelação numérica;
- desenho (2D e 3D);
- medições e orçamentos.

Engenheiro Mecânica Sénior inscrito na Ordem dos Engenheiros.
ID: 627817274

Contactar anunciante

Moisés Brito

No OLX desde maio de 2014

Esteve online ontem às 07:42

xxx xxx xxx

Publicado 07 de fevereiro de 2026

Engenheiro Projetista de Redes de Águas, Esgotos, Gás e AVAC

Sob orçamento

Utilizador

Localização

Faz download da app:

Parceiros OLX:

Prémios:

  • escolhaconsumidor
  • selo