Navegar para o conteúdo principal
OLX Christmas Logo
Chat

Notificações

Anunciar e Vender
Excelente oportunidade centro vila Bombarral
Excelente oportunidade centro vila Bombarral
Excelente oportunidade centro vila Bombarral
DestacarPara o topo

Particular

Certificado Energético: Isento

Tipologia: T4

Casas de Banho: 2

Área útil: 190 m²

Condição: Em construção

Área bruta: 300 m²

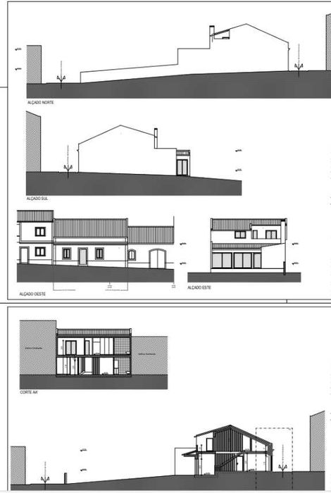
Descrição

Casa no centro do Bombarral.
300m2 lote terreno com acesso directo por duas ruas.
Com projeto aprovado com licença para levantar.
Oportunidade única para ter a casa de sonho em pleno centro histórico da vila.
Zona sossegada e calma, perto de todos os serviços, podendo fazer toda a sua vida a pé!
Obra para retomar pelo futuro proprietário, seguindo ou não o projeto aprovado.
Venda somente a particulares.
ID: 664111972

Contactar anunciante

PF

No OLX desde julho de 2014

Esteve online dia 20 de outubro de 2025

Publicado 09 de dezembro de 2025

Excelente oportunidade centro vila Bombarral

150.000 €

Negociável

Utilizador

Localização

Location

Bombarral E Vale Covo

Leiria

Faz download da app:

Parceiros OLX:

Prémios:

  • escolhaconsumidor
  • selo