Particular
Certificado Energético: A
Mobilado: Não
Tipologia: T3
Casas de Banho: 4 ou mais
Área útil: 290 m²
Condição: Em construção
Área bruta: 838 m²
Descrição
Moradia Unifamiliar Isolada com Projeto Aprovado, Licença de Obra e Construção Incluída, Obra já iniciada.
Localização: Miragaia Marteleira, Papagovas;
Área do terreno: 838 m²
Área total de construção: ~290 m²
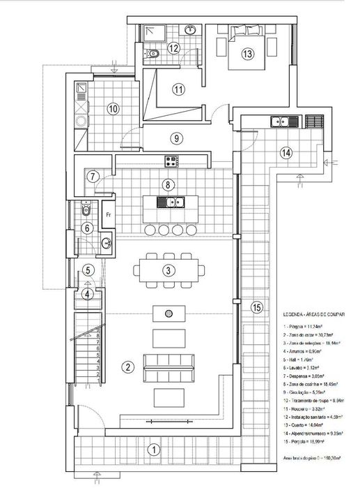
Tipologia: Rés-do-chão + primeiro piso
Extras: Piscina privativa e garagem coberta em anexo
Descrição:
Oportunidade única para adquirir um terreno com projeto aprovado, licença de obra e construção da moradia já incluída. Trata-se de uma casa moderna e funcional, pensada para oferecer conforto e qualidade de vida. A moradia dispõe de amplas áreas interiores, piscina para momentos de lazer, garagem coberta.
Destaques:
- Projeto arquitetônico aprovado pela Câmara Municipal
- Moradia T3 com cerca de 290 m²
- Piscina privativa e garagem em anexo
- Localização tranquila e de fácil acesso
- Possibilidade de escolha de acabamentos durante a obra
- Negociação diretamente com o proprietário/ construtor.
Benefícios:
- Economia de tempo e custos com aprovação de projeto
- Obra legalizada e acompanhada por profissionais
- Valorização imediata após conclusão da construção
- Ideal para famílias que procuram conforto e exclusividade
- Chaves da mão
NÃO TEMOS INTERRESSE EM SER CONTACTADO POR IMOBILIÁRIAS, VENDA PARTICULAR NO MOMENTO.
Localização: Miragaia Marteleira, Papagovas;
Área do terreno: 838 m²
Área total de construção: ~290 m²
Tipologia: Rés-do-chão + primeiro piso
Extras: Piscina privativa e garagem coberta em anexo
Descrição:
Oportunidade única para adquirir um terreno com projeto aprovado, licença de obra e construção da moradia já incluída. Trata-se de uma casa moderna e funcional, pensada para oferecer conforto e qualidade de vida. A moradia dispõe de amplas áreas interiores, piscina para momentos de lazer, garagem coberta.
Destaques:
- Projeto arquitetônico aprovado pela Câmara Municipal
- Moradia T3 com cerca de 290 m²
- Piscina privativa e garagem em anexo
- Localização tranquila e de fácil acesso
- Possibilidade de escolha de acabamentos durante a obra
- Negociação diretamente com o proprietário/ construtor.
Benefícios:
- Economia de tempo e custos com aprovação de projeto
- Obra legalizada e acompanhada por profissionais
- Valorização imediata após conclusão da construção
- Ideal para famílias que procuram conforto e exclusividade
- Chaves da mão
NÃO TEMOS INTERRESSE EM SER CONTACTADO POR IMOBILIÁRIAS, VENDA PARTICULAR NO MOMENTO.
ID: 667541424
Contactar anunciante
xxx xxx xxx
Publicado 19 de janeiro de 2026
Moradia Isolada Papagovas /T3 /Projeto Aprovado /Construção Incluída
495.000 €
Utilizador
Localização
Miragaia E Marteleira
Lisboa