Particular
Certificado Energético: A
Mobilado: Não
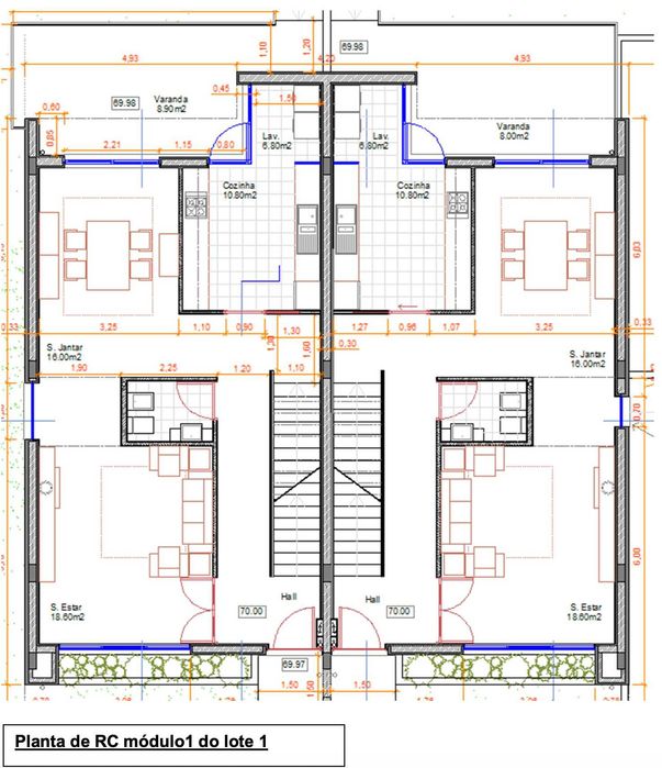
Tipologia: T3
Casas de Banho: 3
Área útil: 180 m²
Condição: Em construção
Área bruta: 270 m²
Descrição
Esta moradia geminada T3 oferece 180 m² de área útil e 270 m² de área bruta com três casas de banho e uma disposição bem organizada entre 3 pisos.
Dispõe de uma cozinha totalmente equipada open-space com a sala de jantar, lavandaria e uma varanda que valoriza o espaço exterior. Os recursos adicionais incluem uma garagem com 90 m²,4 ar condicionados, jardim e um terraço com vista para a natureza.
A construção, prevista para entrega entre Agosto e Dezembro de 2026, é inteiramente realizada em blocos térmicos. O imóvel conta com janelas de alumínio e revestimento total a capoto.
Localizada numa zona suburbana, perto de áreas verdes e da floresta, a propriedade encontra-se a poucos minutos de um centro de desporto e de escolas e jardins de infância.
Além disso, a rede de transportes inclui uma estação de comboios a 515 metros e vários restaurantes próximos.
3D dos interiores em breve.
Dispõe de uma cozinha totalmente equipada open-space com a sala de jantar, lavandaria e uma varanda que valoriza o espaço exterior. Os recursos adicionais incluem uma garagem com 90 m²,4 ar condicionados, jardim e um terraço com vista para a natureza.
A construção, prevista para entrega entre Agosto e Dezembro de 2026, é inteiramente realizada em blocos térmicos. O imóvel conta com janelas de alumínio e revestimento total a capoto.
Localizada numa zona suburbana, perto de áreas verdes e da floresta, a propriedade encontra-se a poucos minutos de um centro de desporto e de escolas e jardins de infância.
Além disso, a rede de transportes inclui uma estação de comboios a 515 metros e vários restaurantes próximos.
3D dos interiores em breve.
ID: 666798447
Contactar anunciante
xxx xxx xxx
Publicado 12 de novembro de 2025
Moradia T3 em Barcelos 'DOMUS SANTI IULIANI'
375.000 €
Utilizador
Localização
Silva
Braga
