Profissional
Área de terreno: 273 m²
Descrição
Particular vende: Terreno com Projeto Aprovado para Moradia T4 com Piscina – Oportunidade Única!
Apresentamos este magnífico terreno com 273m², ideal para construir a sua casa de sonho num ambiente tranquilo, moderno e de fácil acesso.
A propriedade é vendida com projeto aprovado e licença a pagamento para a construção de uma elegante moradia T4 com 180m² mais cave 89.37m2.
89.73 m² de implantação, Um espaço pensado para proporcionar conforto, funcionalidade e qualidade de vida.
O projeto inclui ainda a construção de uma piscina de 21 m², mantendo-se uma generosa área exterior perfeita para criar o jardim dos seus sonhos, com espaço para lazer, convívio e relaxamento em família.
Localização privilegiada:
Situado numa zona em crescimento, este terreno beneficia de excelente acessibilidade,
com a futura saída da A5 ver ultima foto , localizada a apenas 500 metros (ver foto 12),
pertíssimo das praias da linha de cascais, supermercados, colégios internacionais maristas carcavelos ou Manique,
Uma oportunidade ideal para quem procura um equilíbrio entre tranquilidade e proximidade a vias rápidas e centros urbanos.
Projeto da Moradia T4 – Distribuição por 3 Pisos
cave :89.73
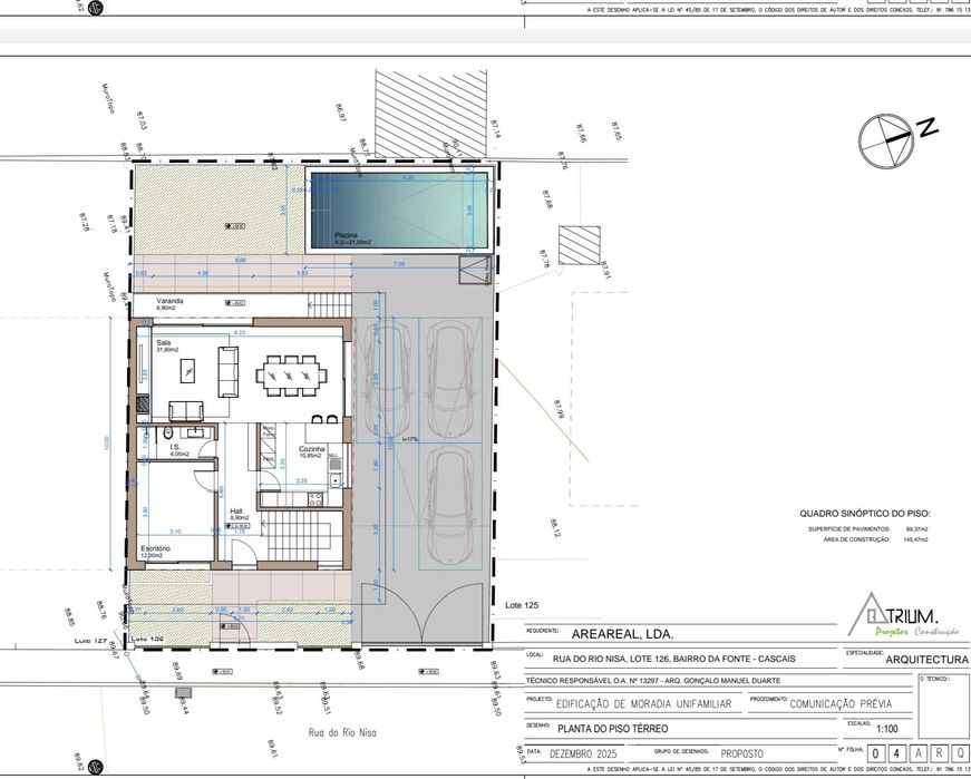
Piso Térreo:
Sala de Estar: 31,80 m²
Hall de Entrada:8.90m2
Lavabo: 4,05 m²
Cozinha: 10.85 m2
Escritório: 12m2
Piscina: 21 m²
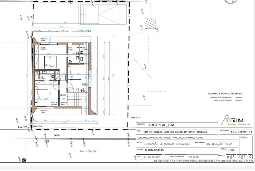
Piso Superior:
Suíte 3: 21m2 com 2 roupeiros + WC: 4.85 m² + varanda: 20.66m2
Suíte 2: com roupeiro: 13.40m² + WC: 3.65m² + varanda: 9,40 m²
Suíte 1: com roupeiro: 14.27 m² + WC: 4,20 m²
Hall dos Quartos: 5,05 m²
Não perca esta excelente oportunidade de investir num projeto já aprovado, com grande potencial de valorização.
Contacte-nos para mais informações ou para agendar uma visita ao local.
(não pretendo ser contactado por agencias imobiliárias)
Apresentamos este magnífico terreno com 273m², ideal para construir a sua casa de sonho num ambiente tranquilo, moderno e de fácil acesso.
A propriedade é vendida com projeto aprovado e licença a pagamento para a construção de uma elegante moradia T4 com 180m² mais cave 89.37m2.
89.73 m² de implantação, Um espaço pensado para proporcionar conforto, funcionalidade e qualidade de vida.
O projeto inclui ainda a construção de uma piscina de 21 m², mantendo-se uma generosa área exterior perfeita para criar o jardim dos seus sonhos, com espaço para lazer, convívio e relaxamento em família.
Localização privilegiada:
Situado numa zona em crescimento, este terreno beneficia de excelente acessibilidade,
com a futura saída da A5 ver ultima foto , localizada a apenas 500 metros (ver foto 12),
pertíssimo das praias da linha de cascais, supermercados, colégios internacionais maristas carcavelos ou Manique,
Uma oportunidade ideal para quem procura um equilíbrio entre tranquilidade e proximidade a vias rápidas e centros urbanos.
Projeto da Moradia T4 – Distribuição por 3 Pisos
cave :89.73
Piso Térreo:
Sala de Estar: 31,80 m²
Hall de Entrada:8.90m2
Lavabo: 4,05 m²
Cozinha: 10.85 m2
Escritório: 12m2
Piscina: 21 m²
Piso Superior:
Suíte 3: 21m2 com 2 roupeiros + WC: 4.85 m² + varanda: 20.66m2
Suíte 2: com roupeiro: 13.40m² + WC: 3.65m² + varanda: 9,40 m²
Suíte 1: com roupeiro: 14.27 m² + WC: 4,20 m²
Hall dos Quartos: 5,05 m²
Não perca esta excelente oportunidade de investir num projeto já aprovado, com grande potencial de valorização.
Contacte-nos para mais informações ou para agendar uma visita ao local.
(não pretendo ser contactado por agencias imobiliárias)
ID: 667932902
Contactar anunciante
xxx xxx xxx
Publicado 12 de janeiro de 2026
Terreno urbano projeto aprovado moradia ,Caparide são domingos rana
225.000 €
Utilizador
Localização
São Domingos de Rana
Lisboa
