Particular
Área de terreno: 329 m²
Descrição
Terreno urbano com Projeto de arquitetura para Moradia T3 geminada com piscina – Atrozela, Cascais
Oportunidade única para construir a casa dos seus sonhos num recanto bem tranquilo e bem localizado em Cascais
Este terreno com 329 m² e 245 m2 área edificável está inserido numa zona residencial calma, perfeita para quem valoriza sossego sem abdicar da proximidade a tudo: escolas internacionais, praias, campos de golfe, hospital e acessos rápidos às principais vias (A5 e A16), facilitando deslocações para Lisboa e toda a região de Cascais.
O projeto, assinado pelo arquiteto Duarte Reino | CADR-Architects, foi cuidadosamente planeado para tirar o máximo partido do terreno, com uma arquitetura contemporânea e funcional.
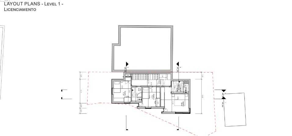
Projeto para Moradia V3 geminada com 3 Pisos:
Piso 0: cave com zona de lavandaria, casa de banho, arrumos e garagem para 2 carros
Piso 1: hall de entrada, casa de banho social, cozinha moderna em open space com sala de jantar e ampla sala de estar com acesso direto ao jardim e piscina
Piso 2: master suite com casa de banho e zona de roupeiros + dois quartos adicionais com casa de banho partilhada
Piscina integrada com o jardim virado a sul/poente, garantindo luz natural ao longo de todo o dia.
Viver em Atrozela é. desfrutar da natureza e do silêncio, com o Parque Natural de Sintra-Cascais mesmo à porta, ideal para caminhadas, trilhos e momentos de bem-estar saindo a pé de casa
Ao mesmo tempo, está a poucos minutos de:
Hospital de Cascais e CascaiShopping
Escolas Internacionais (TASIS, IPS, CAISL, King´s College.. . )
Praias da linha de Cascais
Acesso A5 e A16, permitindo de chegar em Lisboa em menos de 30 minutos
Investimento ideal para:
* Quem procura um projeto com excelente potencial de valorização, seja para habitação própria ou investimento
* Também é perfeito para quem sonha construir a sua moradia com jardim e piscina num bairro sossegado em Cascais, com fácil acesso a tudo. Existe já um projeto de arquitetura, mas o comprador tem total liberdade para adaptar ou submeter o seu próprio projeto, de acordo com as regras em vigor.
Oportunidade única para construir a casa dos seus sonhos num recanto bem tranquilo e bem localizado em Cascais
Este terreno com 329 m² e 245 m2 área edificável está inserido numa zona residencial calma, perfeita para quem valoriza sossego sem abdicar da proximidade a tudo: escolas internacionais, praias, campos de golfe, hospital e acessos rápidos às principais vias (A5 e A16), facilitando deslocações para Lisboa e toda a região de Cascais.
O projeto, assinado pelo arquiteto Duarte Reino | CADR-Architects, foi cuidadosamente planeado para tirar o máximo partido do terreno, com uma arquitetura contemporânea e funcional.
Projeto para Moradia V3 geminada com 3 Pisos:
Piso 0: cave com zona de lavandaria, casa de banho, arrumos e garagem para 2 carros
Piso 1: hall de entrada, casa de banho social, cozinha moderna em open space com sala de jantar e ampla sala de estar com acesso direto ao jardim e piscina
Piso 2: master suite com casa de banho e zona de roupeiros + dois quartos adicionais com casa de banho partilhada
Piscina integrada com o jardim virado a sul/poente, garantindo luz natural ao longo de todo o dia.
Viver em Atrozela é. desfrutar da natureza e do silêncio, com o Parque Natural de Sintra-Cascais mesmo à porta, ideal para caminhadas, trilhos e momentos de bem-estar saindo a pé de casa
Ao mesmo tempo, está a poucos minutos de:
Hospital de Cascais e CascaiShopping
Escolas Internacionais (TASIS, IPS, CAISL, King´s College.. . )
Praias da linha de Cascais
Acesso A5 e A16, permitindo de chegar em Lisboa em menos de 30 minutos
Investimento ideal para:
* Quem procura um projeto com excelente potencial de valorização, seja para habitação própria ou investimento
* Também é perfeito para quem sonha construir a sua moradia com jardim e piscina num bairro sossegado em Cascais, com fácil acesso a tudo. Existe já um projeto de arquitetura, mas o comprador tem total liberdade para adaptar ou submeter o seu próprio projeto, de acordo com as regras em vigor.
ID: 666204239
Contactar anunciante
xxx xxx xxx
Publicado 19 de novembro de 2025
Venda terreno Cascais, perto do Cascais Shopping. Penha Longa/Beloura
340.000 €
Negociável
Utilizador
Localização
Cascais
Lisboa